noAarchitecten
  • en
  • work
  • info
© Stijn Bollaert
© Stijn Bollaert
© Stijn Bollaert
© Stijn Bollaert
© Stijn Bollaert
© Stijn Bollaert
© Stijn Bollaert

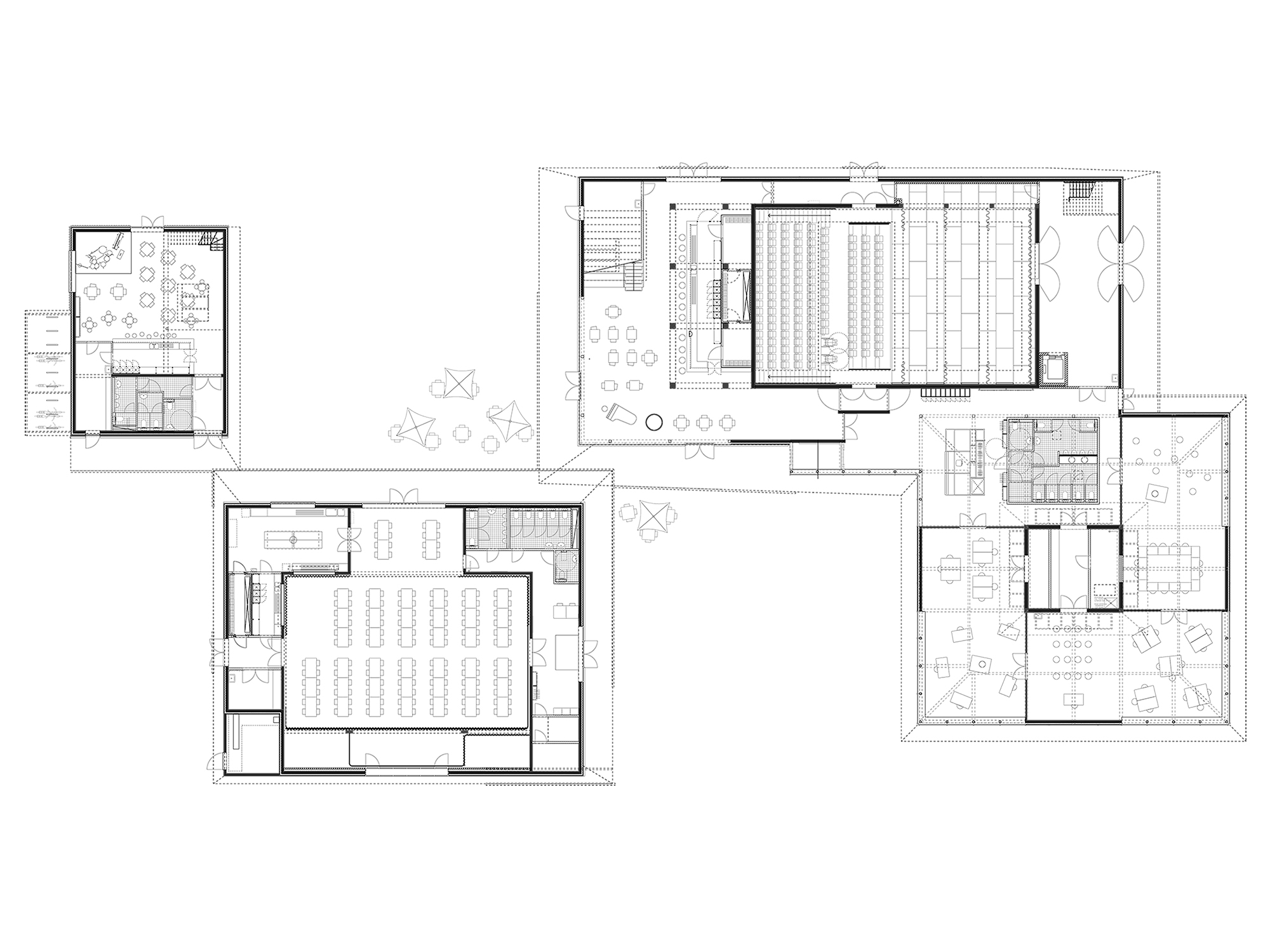
087 House of Culture Gilwe

Construction of a theatre, multifunctional hall and youth centre

  • overview
  • culture
  • public buildings
  • competition
  • completed

Procedure Architecture competition
Client City Wervik
Surface 3.450 m²
Phase completed
Date 2015 – 2022

The site is not far from the village centre, but just outside it. For this reason, we want to emphasise the relationship with the centre. We are orienting the building towards the village centre around the church. At the same time, the Culture House will influence what is currently perceived as the village centre. There will be an enlargement and also a shift within the village. Above all, the Culture House will become a central place in its own right. This, of course, has everything to do with the importance of the new programme for the village.

Entering the building is via a square. This square faces the street and the village centre and establishes a physical relationship with it. This is achieved through the specific arrangement of the various volumes, which are staggered in relation to each other. They always touch each other, but are not connected everywhere.
In this way, the forecourt becomes a yard. There is a view through to the back, to the south-west side. A pleasant spot in the late afternoon, a second square.

The House of Culture Gilwe is a composition of several buildings. They seek out each other’s proximity, overlap each other, are connected or touch each other. The specific location and the concrete building programme form the starting point. We divide the programme into a few large parts – theatre combined with the academy, multifunctional hall, youth centre – which we arranged around an open space. This open space will be a square that provides access and overview and creates a sense of community and connection. It fulfils the role of a miniature village square, the place where one always runs into each other.

The roofs translate the desired heights of the various functions. They give the buildings their own identity within the kinship. They delineate a number of outdoor spaces that, due to their location and orientation, give rise to different uses: a welcoming square towards the village, an evening square for the theatre and multipurpose hall, a practical courtyard at the rear of the theatre.

next: Nova Rode Sint-Genesius-Rode