noAarchitecten
  • en
  • work
  • info
© Stijn Bollaert
© Stijn Bollaert

092 Tour&Taxis Brussels - Building T3

Building T3, housing

  • completed
  • low-energy
  • residential
  • overview

Client Nextensa
Surface 4.900 m²
Phase completed
Date 2016 – 2025

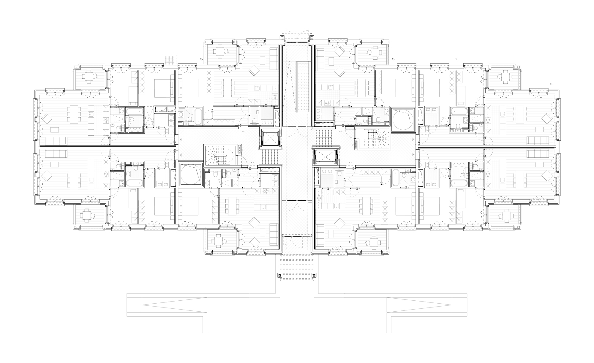
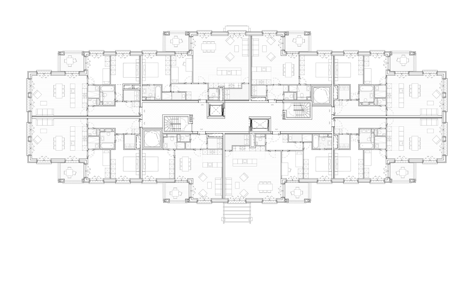
T3 is located at the back of the courtyard, facing its entrance from the driveway. The building forms the front façade, the most visible part of the third courtyard. It consists of a central section and two side wings set back a few metres. The complex is mainly symmetrical. However, this symmetry is attenuated by variations in the loggias and the volume of the side wings. The differences respond to different visual relationships with the surrounding space.

T3 is characterized by white-grey brick and grey prefabricated concrete terraces and loggias. The window frames are made of aluminium in a similar colour.

From the main entrance on the ground floor, a gently sloping staircase leads to the communal garden at the rear and the underground bicycle parking area. long communal hall connects the two side wings and distributes all the dwellings on each floor via two vertical circulation routes. Each floor has eight apartments, arranged in an L-shape, with the exception of the upper floors.

next: Tour&Taxis Brussels - Building UV3