noAarchitecten
  • en
  • work
  • info
© Stijn Blommaert
© Stijn Blommaert
© Stijn Blommaert
© Stijn Blommaert

092 Tour&Taxis Brussels - Building S2

Building S2, housing

  • completed
  • residential
  • overview
  • low-energy

Client Nextensa
Surface 7.700 m²
Phase completed
Date 2016 – 2023

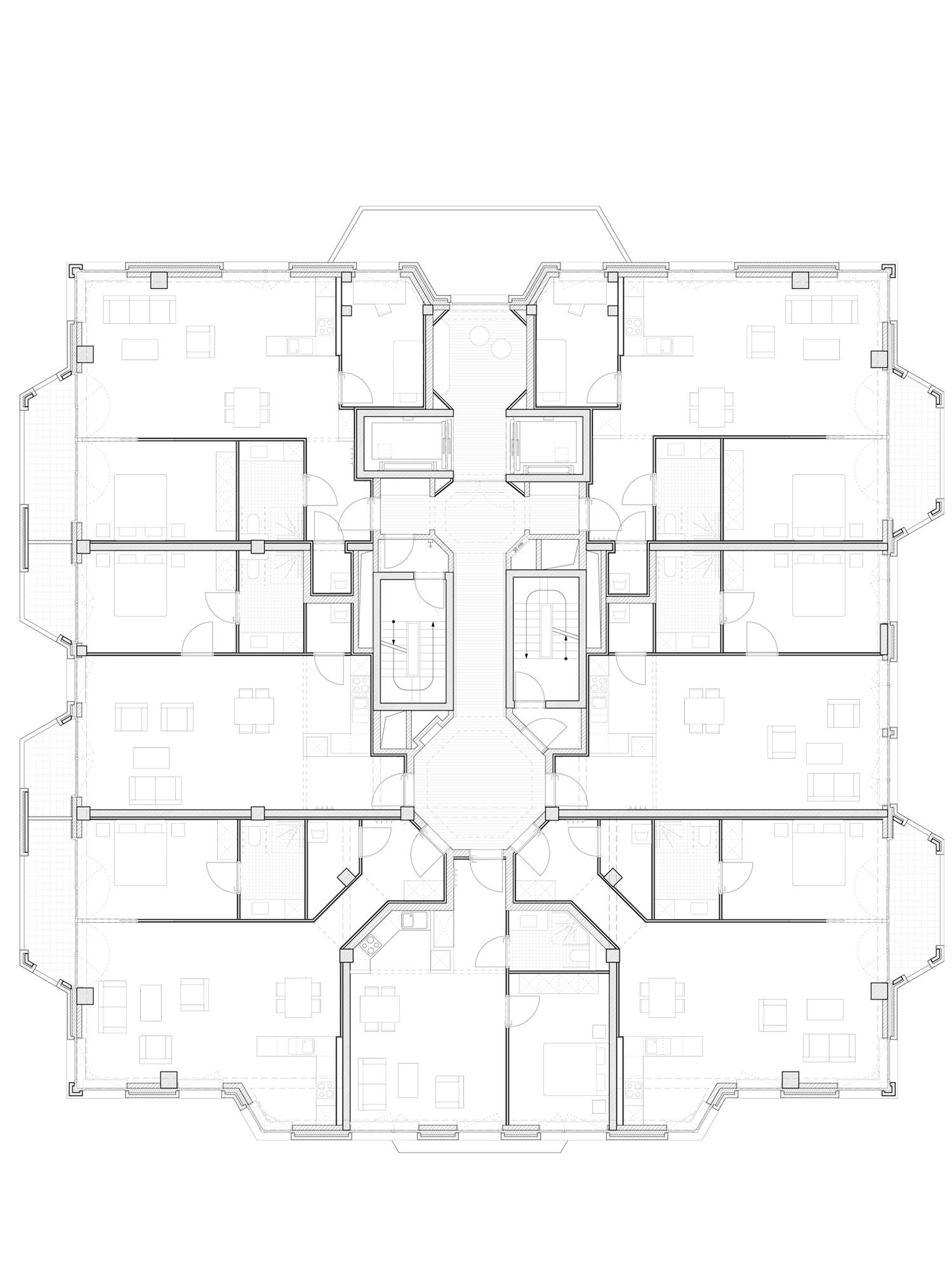
The ‘solitaire’ S2 is a tall building with 80 assisted living residences spread over 13 levels – 12 floors and a ground floor – and a basement. S1 and S2 are connected by an underground service corridor. S2 is divided horizontally into a lower section with six levels and a higher section with seven levels set back on all four sides. 

Unlike the vertically articulated volume of S1, the volume of S2 is strongly articulated horizontally. The ground floor stands out as an urban plinth, using brown polished architectural concrete across its entire height.

All windows have a sill and lintel of constant height. This creates alternating strips of architectural concrete – between the lintel and sill – and strips of brick cladding at window level, which make the building’s floors clearly visible. The brick strips, interrupted by the window openings, are divided horizontally by a difference in the tone of the brick colour. The lower part of the building is divided into five sections; the upper part into three.

next: Tour&Taxis Brussels - Building D6