noAarchitecten
  • en
  • work
  • info
© Stijn Bollaert
© Ziou Gao
© Stijn Bollaert
© Stijn Bollaert

092 Tour&Taxis Brussels - Building D6

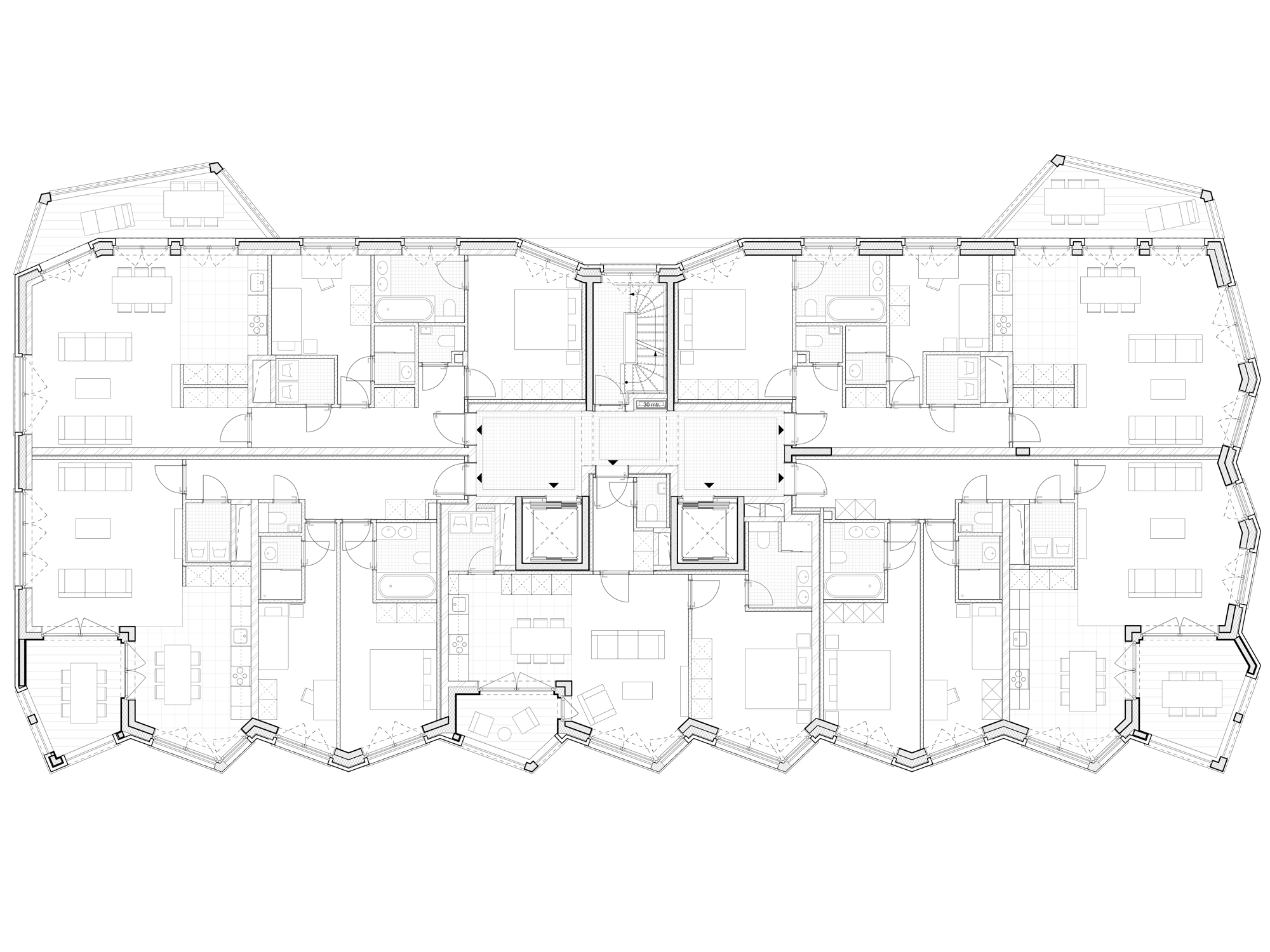
Building D6, housing

  • low-energy
  • residential
  • completed
  • overview

Client Nextensa
Surface 3.600 m²
Phase completed
Date 2016 – 2025

D6 marks the end of the urban façade of the Drève, which as a whole responds to the appearance of the Gare Maritime. On the side of building D5, the volume consists of five levels in order to connect with its neighbour. On the park side, however, its height rises to seven levels to mark the end of the Drève. Here, the facade also offers a contemporary interpretation of the bow window to create multiple views. Loggia-style terraces are integrated into this set of bays.

Red-orange brick is the main component of the façades. In addition to this material, prefabricated beige architectural concrete elements punctuate the corner columns of the loggias and the entrance to the 28-apartment building. The window frames are made of bronze-coloured anodised aluminium.

next: Tour&Taxis Brussels - Building T3