noAarchitecten
  • en
  • work
  • info
© James Ensorhuis
© James Ensorhuis
© James Ensorhuis
© James Ensorhuis
© James Ensorhuis
© James Ensorhuis
© James Ensorhuis
© James Ensorhuis
© James Ensorhuis
© James Ensorhuis
© James Ensorhuis

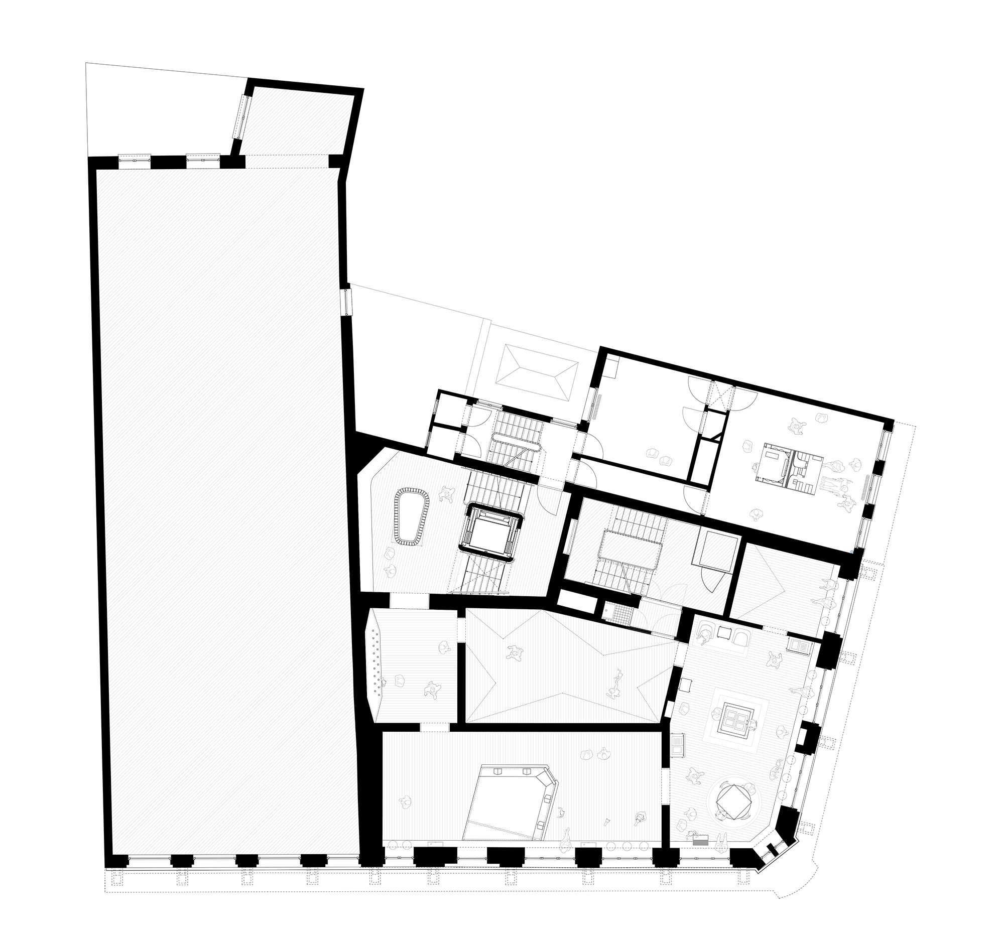
103 Ensor House Ostend

Renovation of the Ensor House and extension to a visitors centre

  • culture
  • historic context / re-use
  • interior
  • public buildings
  • exhibition design
  • completed
  • overview

Procedure Architecture competition
Client NV Eko
Surface 600 m²
Phase completed
Date 2015 – 2020

Ensor and Ostend. They are inextricably linked. His art, his house in Vlaanderenstraat, the many photos by Maurice Antony, the films by Henri Storck, the shells and the Bal du Rat Mort, the sea, the city, all aspects come together in Ensor.
Ensor’s world is a wonderful world, full of contradictions, full of fantasy, full of staging. Full of.
His house, an autobiography. A visitor is welcome, but under the conditions laid down by Ensor. Rituals are strongly determinative.

The ambition to open up Ensor’s House to a large public is noble, necessary and yet not without danger. It must be done with care, so that the wonder, and the amazement at it, remain.
Rituals are there to be respected.

Expanding the house with spaces that are less vulnerable and more flexible offers an exceptional opportunity here. By offering the general public access to Ensor’s special world in this very place, the house can be preserved in its exceptional and valuable capacity. There is no need for major structural alterations; the house can remain intact.
It is the rooms of the former Hotel Providence Regina, a place where Ensor liked to be a guest, that will now receive the general public. The building is protected and the interior offers the chance to restore its elegance of yesteryear, in the early twentieth century.
Entering the visitors’ centre and Ensor House should, from the very first moment, become a visit to the master’s world and should also conform to Ensor’s spirit. This world, however, is so rich and offers so many that no tricks are needed to interest a broad public.

The mood by the sea, also in its flatness and often ugliness, can find a place in Ensor’s world, because it part of it. This duality of James Ensor, the simultaneous attention for beautiful and ugly, and understanding and expressing both so well, makes this assignment for a visitor centre a particularly interesting exercise. Especially today, there is a strong field of tension between ‘culture’ on the one hand and tourism or entertainment on the other. Not infrequently they prefer their own discourse and refuse to reconcile with each other. With Ensor this may With Ensor this can be different in a natural way, precisely because of the complexity inherent in his person. We can create a world that is attractive to a large audience and yet is a homage to the master. The sense of wonder comes naturally.

next: Sint-Andries Bikschote