noAarchitecten
  • en
  • work
  • info

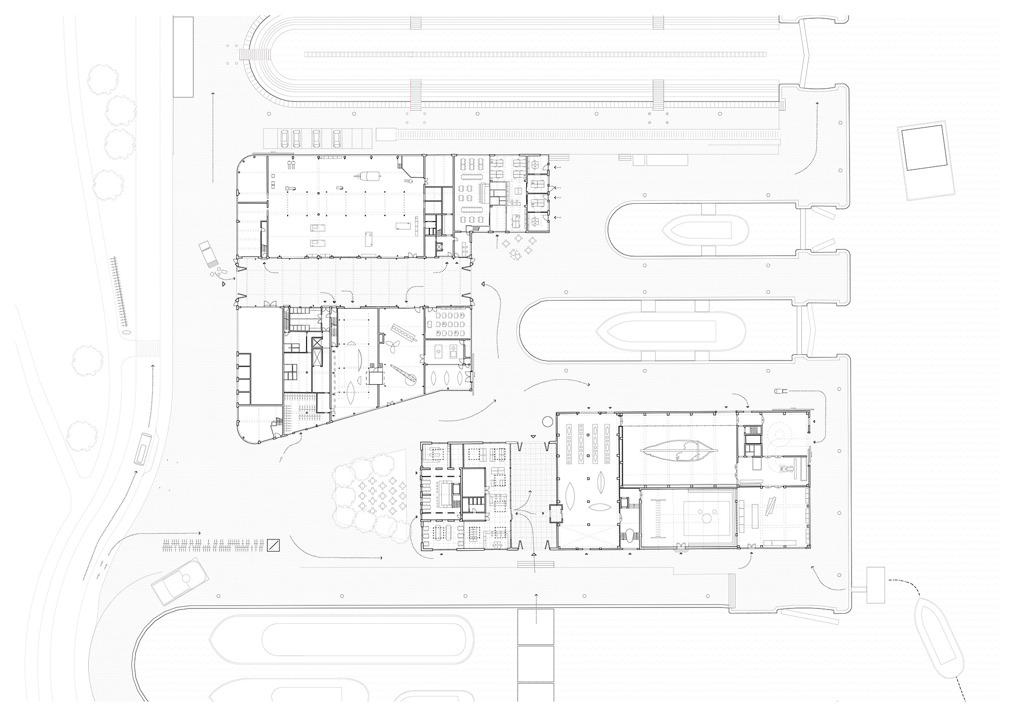
106 Maritime Museum Antwerp

Transformation of the shipyards to museum

  • culture
  • historic context / re-use
  • competition
  • public buildings
  • overview
  • exhibition design

i.c.w. Sergison Bates architects

Procedure Open Call 3205
Client AG Vespa
Surface 10.000 m²
Phase competition
Date 2018

Can this beautiful shipyard become a museum? Above all, let’s make sure it remains an authentic (working) place that can be visited and experienced and is still evolving.

We preserve the work buildings. Even these that are not monuments. It is not about architecture but about how this site has evolved into what it is with the logic of an industrial workshop. We show things in the old workshops and only change the shell by metal plates, mainly to insulate them. We proceed like ships that are given metal hulls. The work, as if it were a ship, can be done on site as the first new work in the shipyard.

next: Provincial Court Bruges