noAarchitecten
  • en
  • work
  • info
© filip dujardin
© filip dujardin
© filip dujardin
© stijn bollaert
© filip dujardin
© filip dujardin
© filip dujardin
© filip dujardin
© filip dujardin
© filip dujardin
© filip dujardin
© filip dujardin
© filip dujardin
© filip dujardin

057 Texture Kortrijk

Renovation and extension of warehouse to create the Flax Museum

  • competition
  • completed
  • culture
  • public buildings
  • overview
  • historic context / re-use
  • offices
  • exhibition design
  • interior

i.c.w. Madoc

Procedure Limited call for tender
Client City Kortrijk
Surface 3.375 m²
Phase completed
Date 2011 – 2014

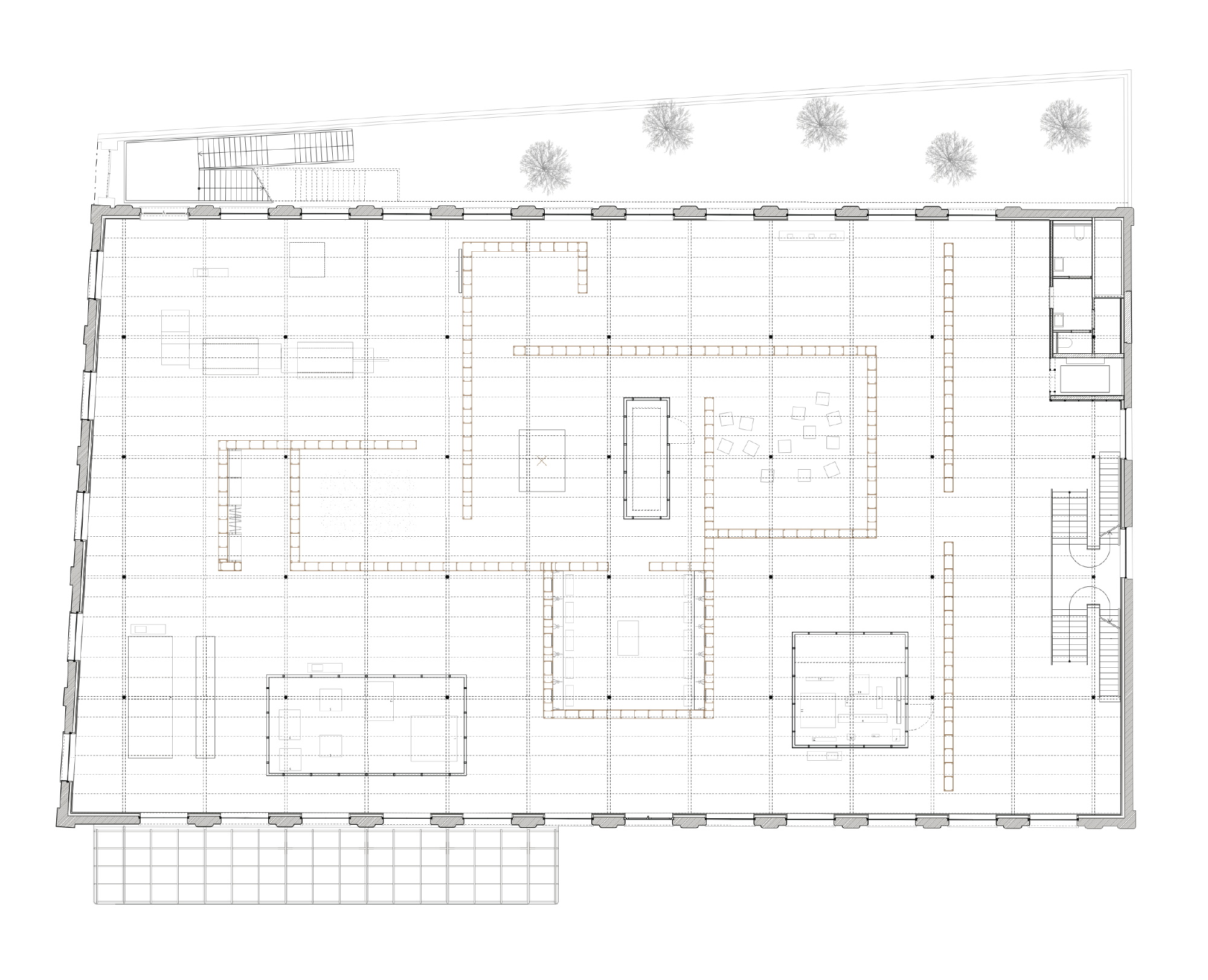
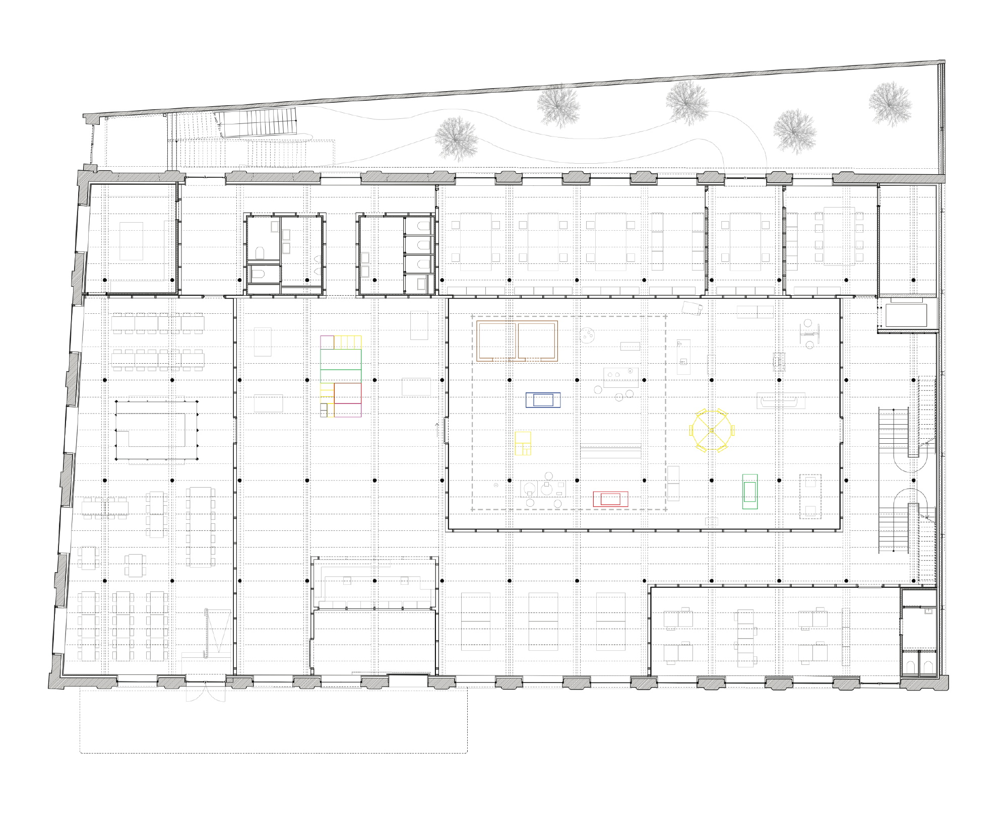
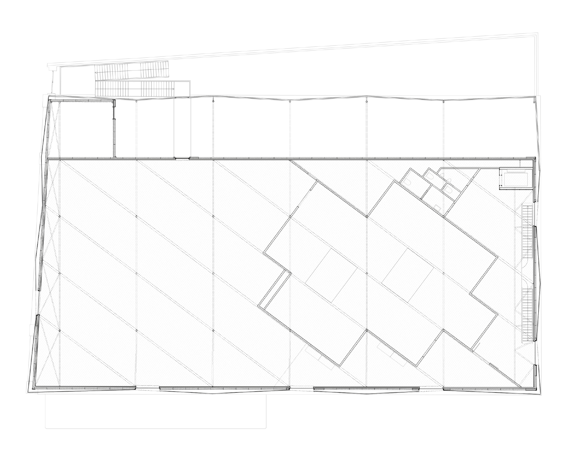
A 1913 dispatching warehouse for flax thread on the River Leie in Kortrijk will be the location for the renewed Flax Museum. This building is on ‘Overleie’, the other side of the river, not far from the city centre. This rather inconspicuous brick warehouse has a typical interior of cast-iron pillars and beams. In order to accommodate the requirements for the museum, an additional shed is to be built on the roof as a logical extension of the industrial construction. The grid of steel pillars is extended upwards and the beams are laid across them diagonally at varying heights. A series of ridge roofs creates four pointed gables which together make a crown-like storey on the building. It is to be clad in gold-coloured corrugated sheeting as an allusion to the ‘Golden River’, which derives from the golden gleam of the retted flax in the River Leie. This ‘Golden Rooftop’ also gives the museum a distinctive presence on its site on the other side of the river, so that it projects itself into the overall visual aspect of the city.

The ground floor area is broken up using glass walls. The abundance of these transparent walls with their striking wooden supporting structure makes for a complex and layered suggestion of depth. Such individual elements as the reception desk, lockers, bar, tables, cabinets and displays share the same idiom. As in a big factory hall, each piece of equipment has its own specific function, designed on the basis of practical logic. The assemblage of industrial components makes it all recognisable.
We also use the colour of the flax in the interior. Sheets of pressed flax are used as a cladding in front of the flax insulation inside the facades and this adds a gentle glow to the internal space.

The new monumental staircase is meticulously inserted into the existing supporting structure. A platform halfway up offers a general view of the museum.

Following the two rectangular storeys in the existing building, the orientation of the supporting structure inside the roof-shed has an odd effect. The pillars and beams remain dominant, while the rooms are given an unexpectedly complex spatial expression.

next: Concert Hall De Kreun Kortrijk