noAarchitecten
  • en
  • work
  • info

117 Town hall Leuven

Renovation and reorganisation of the existing town hall

  • culture
  • historic context / re-use
  • competition
  • public buildings
  • interior
  • overview

Procedure Open Call 3703
Client City Leuven
Phase competition
Date 2019

The changing city, the changing house
Belgium’s most beautiful town hall is no longer a town hall. It sounds shocking, but if we take it literally, this statement is true. The building is currently undergoing perhaps one of the most important transformations in its 500 year existence: it is radically changing its significance. Historic cities are becoming places to visit. There is less work, services are moving away to be more accessible and commerce is also undergoing a revolution. The historical buildings, attractions in the city concept, are losing their original function and require new uses. What will be the new significance of the historic town hall? How can this building, so important to the city, reinvent its importance? And how do we ensure that the town hall becomes not just a tourist attraction, but also a place of relevance for the people of Leuven?

The participatory town
Leuven wants to involve its inhabitants more in the city policy and encourage them to get involved in public life. The historical town hall could become a special place for this, in a sense a neutral place. The citizens are not guests of the services or the administrators, but have their own place, studio, lounge in the new old city hall. At regular intervals, services and administration will be invited for consultations. The city hall now truly becomes a house for the city.

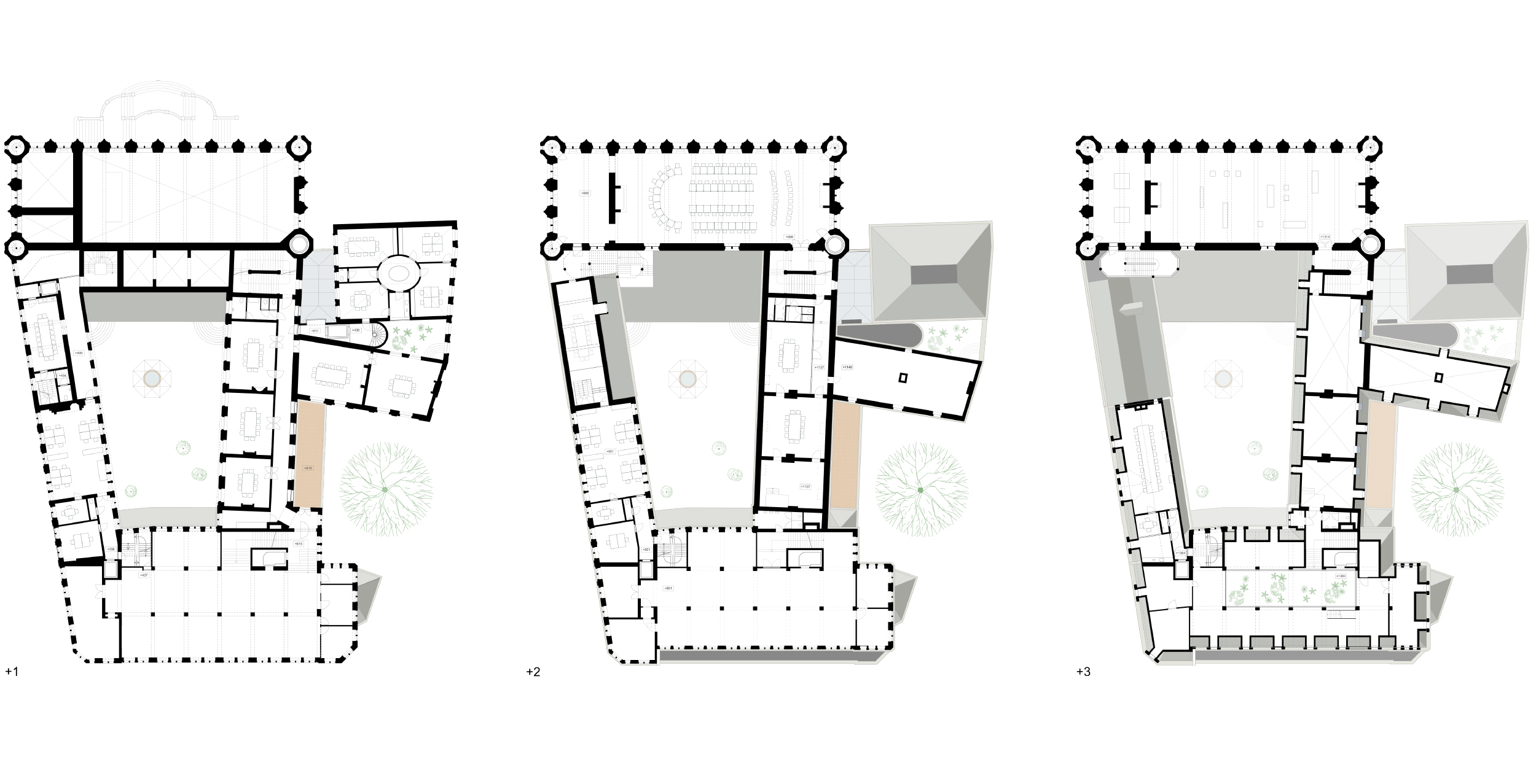
A string of pearls
We combine the historical situation, a loose collection of individual fragments, with the desire to unite them into a working whole. The central courtyard Vrijthof remains free. The court as a space of decompression and respite amid the dense building area. Around it a circular tour that threads the existing corridors together and breaks through or completes sections where necessary. A circular walk with indoor and outdoor moments, which also connects existing and new stairs and elevators; a chain with the buildings as pearls.

Along the string, places and buildings alternate, old and original, younger and rebuilt, along the garden or on the street. This provides orientation. At any moment, you know where you are, where you came from and where you are going.

next: Citygate II / Petite Île